Skip to content
    Prices Starting at $310,990

    Discover Florence Gardens

    Community Address | 12149 Creole Lane, Gulfport, MS 39503

    Explore the Community

    Luxury Gulfport Homes Without the High Price Tag

    Florence Gardens offers stunning homes in Gulfport, MS, that are both unique and timeless, beautiful and refined. This astounding master-planned Gulfport community takes its classic town design from the rich Southern traditions that have influenced our residential growth for as long as there’ve been folks here in the South. Featuring stylish new floor plans, including our celebrated Creole Collection, Florence Gardens is also packed with exciting community amenities. Stop by the community saltwater pool, 27-acre lake, gorgeous walking trails, as well as numerous parks and preserves.  

    Key Features

    1,653 - 3,479 sq ft
    3 - 5 beds
    2 - 3 baths
    2 garage

    Schedule an Appointment

    Available Floorplans

    The Coral
    Seaside | Southern
    5 Bedrooms | 3 Bathrooms
    2 Car Garage | 2527 Sq. Ft.
    $372,990 - $459,990
    Web-capture_3-5-2023_112810_wwwdropboxcom_
    The Dune
    Craftsman | French Country
    4 Bedrooms | 3 Bathrooms
    2 Car Garage | 2219 Sq. Ft.
    $354,990 - $439,990
    Dune Floorplan
    The Sandpiper
    Bungalow | Traditional
    3 Bedrooms | 2 Bathrooms
    2 Car Garage | 1659 Sq. Ft.
    $302,990 - $389,990
    Sandpiper Floorplan
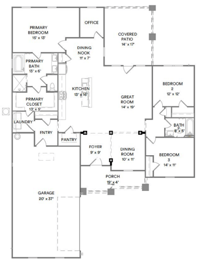
    The Claiborne
    English Country | Seaside
    4 Bedrooms | 3 Bathrooms
    2 Car Garage | 2525 Sq. Ft.
    $344,990 - $799,990
    Claiborne Floorpaln
    The Royale
    Craftsman | Traditional
    2 Bedrooms | 2 Bathrooms
    2 Car Garage | 1653 Sq. Ft.
    $284,990 - 399,990
    Royale Floorplan
    The Decatur
    Bungalow | Southern
    3 Bedrooms | 3 Bathrooms
    2 Car Garage | 2179 Sq. Ft.
    $329,990 - $459,990
    Decatur Floorplan
    The Brooks
    Craftsman | Craftsman Courtyard | Southern | Southern Courtyard
    3 Bedrooms | 2 Bathrooms
    2 Car Garage | 2068 Sq. Ft.
    $349,990 - $369,990
    Brooks Floorplan
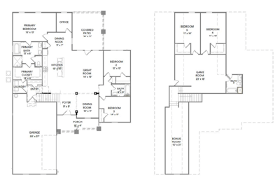
    The Elliot
    Craftsman | Craftsman Courtyard | Southern | Southern Courtyard
    5 Bedrooms | 3 Bathrooms
    2 Car Garage | 3479 Sq. Ft.
    $452,990 - $464,990

    Creating a Place Where Life Gets Better

    As your hometown homebuilder, Elliott Homes is committed to creating a place where life gets better. We do so by building communities with amenities designed to foster relationships with residents throughout the neighborhood, as well as offering homes with a low-maintenance lifestyle to give time to enjoy the views.

    Clairborne Kitchen

    Explore the Area

    • Attractions

      Gulfport Little Theatre

      Mississippi Aquarium 

      Gulfport Arts Center

      Lynn Meadows Discovery Center

      Bayou Vista Golf Course

      Gulf Islands Waterpark

      Owen T Palmer Park 

    • Shopping

      The Promenade

      Rouses Market

      Crossroads Center

      Gulfport Premium Outlets

      Walmart Neighborhood Market

      Walgreens

    • Schools

      River Oaks Elementary (K-6)

      North Gulfport Middle School (7,8)

      Harrison Central High School (9-12)

    • Dining

      The Chimneys

      Shaggys

      Salute Italian Restaurant

      Half Shell Oyster House

      The Rack House

      Patio 44

    Gulfport Little Theatre

    Mississippi Aquarium 

    Gulfport Arts Center

    Lynn Meadows Discovery Center

    Bayou Vista Golf Course

    Gulf Islands Waterpark

    Owen T Palmer Park 

    The Promenade

    Rouses Market

    Crossroads Center

    Gulfport Premium Outlets

    Walmart Neighborhood Market

    Walgreens

    River Oaks Elementary (K-6)

    North Gulfport Middle School (7,8)

    Harrison Central High School (9-12)

    The Chimneys

    Shaggys

    Salute Italian Restaurant

    Half Shell Oyster House

    The Rack House

    Patio 44

    Schedule an Appointment

    Contact a New Home Advisor to schedule an appointment and tour our community!